Cookiepolitik
Vi anvender cookies for at forbedre brugeroplevelsen. Ved at klikke dig videre, accepterer du automatisk vores brug af cookies. Læs mere
Luk
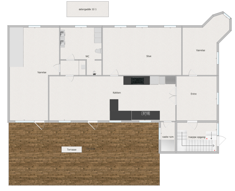
3 værelses lejlighed på 133m2
Stor, flot 3-værelses lejlighed på 1 sal - 133 m2 - centralt i Tørring.
Nu udlejes en rummelig og indbydende lejlighed på hele 133m2, beliggeende på 1 sal i en flot og velholdt ejendom i Tørring. Lejligheden er ideel til dig, der ønsker god plads, moderne faciliteter, en god udsigt, og en central placering.
Lejligheden indeholder:
Stor, lys stue
2 værelser, hvaraf det ene har store flotte skabe med skydelÃ¥ger.Â
Veludstyret og moderne køkken med god udsigt, og direkte adgang til stor altan.
Flot badeværelse
Fælles haveÂ
Gode parkeringsforhold lige bag huset
Â
| Type | Lejlighed |
| Adresse | Østergade 10,1 |
| Postnr. og by | 7160 Tørring |
| Husdyr tilladt | Nej |
| Størrelse | 133m2 |
| Husleje | 7.900,- |
| Aconto vand | 500,- |
| Aconto varme | 1.250,- |
| Leje i alt | 9.650,- |
| Depositum | 23.700,- |
| Ledig | Snarest |